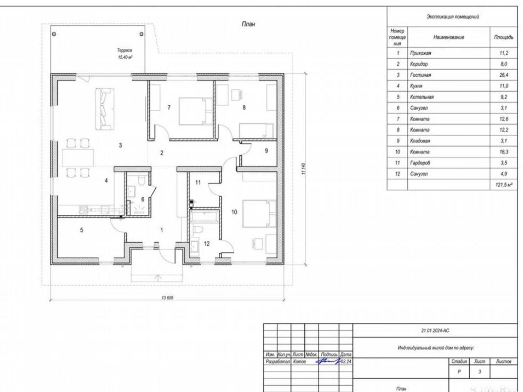
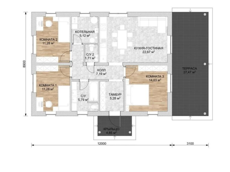
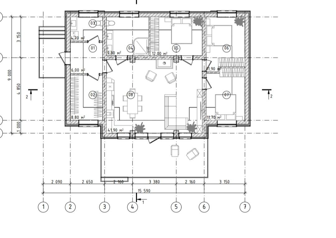
«Коробка» дома
Фундамент: Монолитная ж/б плита 300 мм, «подушка» под основание плиты с послойным
уплотнением виброплитой, прокладка канализации, закладные для ввода электричества ,воды
Стены: Наружные и внутренние несущие стены из автоклавного газобетона 300
мм, перегородки 100 мм. армирование металлической арматурой 8мм, утепленный армопояс.
Кровля: мауэрлат, балки перекрытия, стропильная система, гидроизоляция, обрешетка, покрытие из металлочерепицы
уплотнением виброплитой, прокладка канализации, закладные для ввода электричества ,воды
Стены: Наружные и внутренние несущие стены из автоклавного газобетона 300
мм, перегородки 100 мм. армирование металлической арматурой 8мм, утепленный армопояс.
Кровля: мауэрлат, балки перекрытия, стропильная система, гидроизоляция, обрешетка, покрытие из металлочерепицы